How to Build the Entryway Hall Tree You’ve Been Dreaming Of
Build this sophisticated modern hall tree that merges clean lines with practical storage solutions.
Multiple Days
Intermediate
Around $2000
Introduction
Create a functional and stylish entryway hall tree that maximize storage while providing a convenient place to sit.
A couple of years back, while on a road trip with my wife, we decided to stay at a historically remodeled hotel in Colorado. As I waited in line to check in, I found myself looking at the furniture, as I often do, and I was struck by the impact that large furniture makes when placed in an entryway or foyer.
Although there were a few similarities, it was a very different piece of entryway furniture from the hall tree that we built. Both pieces are large, highly functional, and feature a hand-rubbed finish that enhances the natural beauty of the wood without adding additional layers. Follow along as we build a modern entryway hall tree with a bench.
Finishing first
I chose to use wipe-on polyurethane to finish the walnut pieces of this project because of its ease of application and its low luster finish. I have always advocated finishing what you can before construction. However, when pre-finishing this project with wipe-on poly, the sheen and coverage results varied significantly. After spending time sanding back some pieces and reapplying finish so color and sheen matched, I don’t think much time was saved by finishing ahead of time. That said, the project is yours. Do what makes the most sense for you.
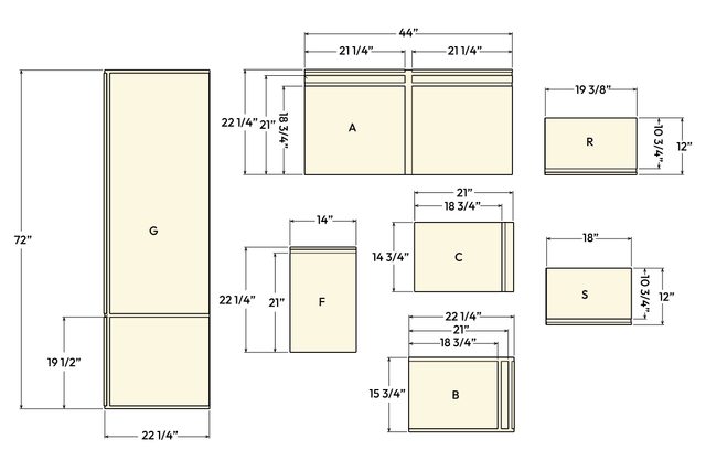
Cutting List
| KEY | QTY. | PART | DIMENSIONS | MATERIAL |
| A | 2 |
Seat Cabinet top/bottom |
3/4″ x 22-1/4″ x 44″ |
3/4″ walnut ply |
| B | 2 |
Seat Cabinet side |
3/4″ x 15-3/4″ x 22-1/4″ |
3/4″ walnut ply |
| C | 2 |
Seat Cabinet divider |
3/4″ x 14-3/4″ x 21″ |
3/4″ walnut ply |
| D | 2 |
Seat cabinet false back |
3/4″ x 14-3/4″ x 21-1/2″ |
3/4″ birch ply |
| E | 1 |
Seat cabinet back |
3/4″ x 14-3/4″ x 44″ |
3/4″ walnut ply |
| F | 2 |
Tall cabinet top/bottom |
3/4″ x 14″ x 22-1/4″ |
3/4″ walnut ply |
| G | 2 |
Tall cabinet side |
3/4″ x 22-1/4″ x 72″ |
3/4″ walnut ply |
| H | 1 |
Tall cabinet fixed shelf |
3/4″ x 14″ x 21″ |
3/4″ walnut ply |
| J | 1 |
Tall cabinet back |
3/4″ x 14″ x 71″ |
3/4″ walnut ply |
| K | 1 or 2 |
Tall cabinet adjustable shelf |
3/4″ x 13-13/16″ x 19-3/4″ |
3/4″ walnut ply |
| L | 20 |
Slat wall spacer/hook |
1-1/2″ X 1-1/2″ x 6″ |
Solid walnut |
| M | 9 |
Slats |
1-1/2″ X 1-1/2″ x 70-1/2″ |
Solid walnut |
| N | 2 |
Slat wall frame side |
3/4″ x 1-5/8″ x 72″ |
Solid walnut |
| N | 1 | Runner | 1/2″ x 32” x 48” | 1-1/2” x 3-1/2” x 46-1/2 |
| P | 2 |
Slat wall frame top/bottom |
3/4″ x 1-5/8″ x 28-1/2″ |
Solid walnut |
| Q | 5 |
Feet |
1-1/2″ x 6″ x 6″ |
Solid walnut |
| R | 2 |
Drawer box front |
1/2″ x 12″ x 19-3/8″ |
1/2″ walnut ply |
| S | 4 |
Drawer box side |
1/2″ x 12″ x 18″ |
1/2″ walnut ply |
| T | 2 |
Drawer box back |
1/2″ x 10-3/4″ x 19-3/8″ |
1/2″ walnut ply |
| U | 2 |
Drawer box bottom |
1/2″ x 32” x 48” | 1-1/2” x 3-1/2” x 46-1/2 |
| V | 2 |
Drawer front |
3/4″ x 14″ x 21-5/8″ |
3/4″ birch ply |
| W | 1 |
Door |
3/4″ x 14″ x 71″ |
3/4″ birch ply |
| X | 1 |
Seat plywood |
3/4″ x 23-1/4″ x 45-1/8″ |
3/4″ walnut ply |
| Y | 1 |
Seat front trim |
3/4″ x 1-1/2″ x 46-5/8″ |
Solid walnut |
| Z | 2 |
Seat side trim |
3/4″ x 1-1/2″ x 24″ |
Solid walnut |
| AA | 1 |
Shelf plywood |
3/4″ x 18-1/2″ x 28-1/2″ |
3/4″ walnut ply |
| BB | 1 |
Shelf front trim |
3/4″ x 1-1/2″ x 30″ |
Solid walnut |
| CC | 2 |
Shelf side trim |
3/4″ x 1-1/2″ x 19-7/8″ |
Solid walnut |
| DD | 1 |
Shelf back trim |
3/4″ x 1-1/2″ x 28-1/2″” |
Solid walnut |
Tools Required
- 1-3/8" Forstner bit
- 1/4" drill bit
- 18-gauge nailer
- 23-gauge pin nailer
- 7/32" drill bit
- Band saw
- Belt/disc sander
- Biscuit joiner
- Clamps
- Dado blade
- Drill press
- Drill/driver
- Hacksaw
- Level
- Miter saw
- Painting supplies
- Pocket hole jig
- Random orbital sander w/ sandpaper
- Router w/ flush trim bit
- Shelf pin drilling jig
- Socket wrench
- Speed or framing square
- Table saw
Materials Required
- #20 biscuits
- 1 - 1/2"x4x8 walnut plywood
- 1 - 1x4x8' birch
- 1 - 3/4"x4x8 birch plywood
- 1-1/2" 18ga. brad nails
- 1-1/2" pocket hole screws
- 1-5/8" screws
- 1" 23ga. nails
- 1” screws
- 1/2" screws
- 1/4" x 2" lag
- 2 - 1x6x8' walnut
- 2 pairs - 18" undermount drawer slides w/ locking devices
- 2" Screws
- 3 - 2x8x8' walnut
- 3 - 3/4"x4x8 walnut plywood
- 4 - 1/2" overlay hinges
- 4 - 1/4" x 3-1/2" bolts
- 4 - 5/16" T-nuts
- 4 - 5/16" x 2" bolts
- Angle brackets
- Assorted sandpaper
- CA glue
- Closet rod w/ hardware
- Drawer pulls
- Fender washers
- Paint
- Painter's tape
- Primer
- Shop rags
- Two-sided tape
- Wipe-on polyurethane
- Wood filler
- Wood glue
Project step-by-step (12)
Fig. A: Dado Layout

Cut all the components
Use a table saw to cut all the components from the cutting list. Cut them so the grain direction runs the length of the piece of plywood as usual, except for the sides of the seat cabinet (B), where the grain should run vertically.
Then, install the dado blade and cut 1/4-in. deep x 23/32-in. dado joints in the top/bottom (A), sides (B) and dividers (C) of the seat cabinet, and the top/bottom (F) and side (G) of the tall cabinet, and the drawer box front (R) and sides (S) as show in Fig. A. There are also rabbets cut to the same width and depth as the dados along the top and bottom edges of the seat and tall cabinet sides (B and G).

Fig. B: Seat Cabinet Casework

Assemble the seat cabinet
Dry fit all the components together as in Fig. B. Depending on the exact depth of your rabbets and dados, you may have to trim the seat back (E) and false backs (D) to make everything fit together.
Once everything has been dry fit, assemble the seat cabinet using wood glue and clamps. For fasteners, use 1- 5/8-in. screws through the top and bottom (A), and along the top edge of the sides (B), and pocket hole screws along the inner edge of the false backs (D), where they meet the dividers (C). Use nothing more than an inconspicuous 1-1/2 in. 18-gauge nail or two on the sides of the seat (B). Clean up any glue squeeze out with a clean wet rag as you go.

Fig. C: Tall Cabinet Casework

Assemble the tall cabinet
The tall cabinet, although the largest, is also the easiest to assemble. Drilling the shelf pin holes in the sides (G) before assembling this cabinet will make your life simpler. Every shelf pin jig is a little different, but use yours to drill a handful of pinholes centered between the bottom (F) and the fixed shelf (H) at both the front and back edges of the sides (G).
Just like the seat cabinet, dry fit the top/bottom (F), sides (G), fixed shelf (H) and back (J) together to ensure everything fits with its corresponding dado. Then, use wood glue, clamps and a few 1-1/2 in. 18-gauge nails to assemble the cabinet as in Fig. C. Again, make sure everything is square and clean up any glue squeeze out with a wet rag during assembly.

Edgeband
Rather than use paper-thin iron-on edge banding to cover the plywood edges on the front of the seat and tall cabinets, rip 1/4 inch x 3/4 inch strips of walnut, cut them to length, and secure them to the cabinets using glue and 23-gauge nails.
After ripping the 1/4-inch wide strips, sand the kerf marks smooth so the walnut strips sit flat against the plywood edge. Glue and pin them flush to the inside edge of the casework plywood so that the difference in width between the plywood and the 3/4 inch strip hangs on the outside of the cabinet, and rout it off with a router and flush trim bit.
After all the pieces of 1/4-inch edgebanding are cut, attached and routed, break the sharp edges with 220-grit sandpaper so they are smooth to the touch.

Fig. D: Slat Wall Hook

Make the slat wall hooks
Cut a 56-1/2 degree miters on the top end of the four slat wall spacer blocks (L). Then, drill a 1/4 in. hole on the drill press, 7/8 inch in from the front edge of the hook and 4-15/16-in. down from the point of the 56-1/2 degree miter. Use the inside of a painter’s tape roll to trace an arch from the bottom of the block to the point that leaves a flat back face of 2-7/16 inches. Like in Fig. D. Use a band saw or a benchtop belt/disc sander to remove the radiused material.

Fig. E: Slat Wall

Assemble the slat wall
Layout the slats (M), slat wall spacers (L), and shaped slat wall hooks on a workbench. Mark locations on the seams between the fixed slats (M) and slat wall spacers (L) for biscuits so that the faces line up flush and are located 14-1/4-in. in from the top and bottom of the slat (M) ends.
For the locations with the hooks, transfer the 1/4 inch drilled hole location drilled in the hooks to the slats (M) on either side of it, ensuring it is in line with the slat wall spacers (L) on either side.
Using a biscuit joiner, cut #20 biscuit slots in the marked slats (M) and slat wall spacers (L).
Drill 1/4-inch x 1-1/8-inch deep holes in the transferred hole locations on each side of the hooks.
Use a hacksaw to cut the heads off of four 1/4-in. x 3-1/2-in. bolts.
Glue up the slats (M), slat wall spacers and hooks (L) using #20 biscuits, wood glue, and clamps. Thread the cut 1/4-in. bolts through the holes in the hooks and into the holes drilled in the slats on either side when you glue it up, making sure not to accidentally put any glue in joints where the hooks are located.
After letting the glue set up for a bit, secure the slatwall frame pieces (N and P) around the glued-up slats, spacers and hooks using wood glue, clamps, and 1-1/2-in. brad nails.

Fig. F: Feet

Make and install the feet
To make the five feet for the hall tree, you need to cut a 27-degree angle at the table saw along all four edges of the foot blocks (Q).
Once the angles have been cut, use a 1-3/8-in. forstner bit to drill a 5/8-inch deep hole centered on the bottom of each foot. Then, switch out the forstner bit for a 7/32-in. drill bit and drill the rest of the way through the foot.
After sanding and applying a coat of finish and allowing it to dry, install the four corner feet 3/4-in. from the front, back, and sides on the bottom of the seat cabinet bottom (A). Use 5/16-in. x 2-in. bolts with fender washers to attach the feet into 5/16-in. t-nuts installed in the bottom (A) of the seat cabinet. As the middle foot will be centered on the seat cabinet bottom (A) and land on the seat cabinet dividers (C), use a 1/4-in. x 2-in. lag and fender washer to attach it. Use a couple of small tabs of two-sided tape to hold the feet in place and keep them from spinning while you tighten down the bolts/lag with a socket wrench.

Fig. G: Seat and Shelf

Build the seat top and shelf
The seat top and shelf are constructed using the same building methods, but with minor adjustments to each piece. They are both constructed with pieces of 3/4-in. plywood (X and AA) framed with solid Walnut to cap the edges of the plywood. The seat (Y and Z) and shelf trim (BB – DD) pieces have mitered front corners and are secured flush to the top edge of the plywood with wood glue and 18-gauge nails.
The seat plywood (X) is only capped with trim (Y and Z) on three sides, whereas the shelf is capped on all four. The shelf’s side trim (CC) is cut 1/8 in short to allow it to be secured snugly against the slat wall when installed.
Pro tip: Most plywood has one side with a much nicer veneer than the other. Have the best veneer face up for the seat plywood (X) and down for the shelf plywood (AA) as these will be the sides seen from eye level.

Fig. G: Drawer Boxes

Build and install the drawer boxes
We used undermount drawer slides for this project which have a few important requirements to make them function seamlessly:
- The drawer boxes must be made of 1/2-in. thick material.
- The drawer box bottom (U) must be inset 1/2-in. above the bottom of the drawer sides (S) and front (R).
- The inside width of the drawer boxes (i.e. the front (R) and back (T)) must be 1-5/8-in. less than the inside width of the drawer openings.
To assemble the drawer boxes, use wood glue and 18-gauge nails to join the drawer box sides (S), front (R), and back (T) as in Fig.G. Allow the glue to dry, then slide the bottom (U) into the 3/4-in. dados on the sides (S) and front(R). Pin the bottom (U) in place with 18-gauge nails through the dado.
Secure 1/4-in. thick solid wood edgebanding on the top edges of the glued-up drawer box with glue and 23-gauge pins. Rout off the excess with a flush trim bit. Be careful not to tip the router while doing this as you ride it across the narrow top edge of the box.
To install the slides, secure them to the sides (B) and divider (C) of the seat cabinet using 1/2 in. screws in their machined mounting holes. Make sure the slides are set back about 1/8 inch from the front edge of the opening.
Install the locking devices required with undermount slides on the underside of the 3/4 in. drawer bottoms (U), and drill a couple of bore holes at the back of the box, per your specific drawer slides instructions, to keep the box itself from coming off the slides.
Then it’s as simple as clipping the finished drawer box on the slides, and the drawers are installed.

Assemble the hall tree components
This piece of furniture is big and would be difficult to move through doorways, so assemble the casework in the room where the hall tree is going to be placed.
Attach the finished seat top to the seat cabinet so that the back edges are flush. Use wood glue, clamps and a couple of 23-gauge pins to keep the top from shifting.
Clamp together the completed slat wall and tall cabinet so that their back edges and tops are flush, and screw them together with 1 -5/8 in. screws through the inside of the cabinet side (G) and into the side frame (N) of the slat wall.
Center the attached upper cabinet and slat wall on top of the seat cabinet and flush with the back of the seat, and screw them together. Use two-inch screws from inside the drawer openings through the seat cabinet top (A) and seat plywood (X), into the bottom of the tall cabinet (F). From the top, screw down along the bottom frame of the slat wall (P), through the seat top (X) and into the top of the seat cabinet (A) to secure the slat wall to the seat, ensuring the side of the tall cabinet and slat wall are square to one another.
Then attach the completed upper shelf, centered between the top of the slat wall (P) and the top of the hooks/slat wall spacers (L). Screw through the back of the slats (M) into the back trim of the shelf (DD) and through the side of the tall cabinet (G) into the side of the trim of the shelf (CC), making sure to use a level to ensure it is attached level side to side and front to back.

Build and install the door and drawer fronts
The door (W) and drawer fronts (V) are 3/4 in. birch plywood slabs, edgebanded using 1/4-in. x 3/4-in. paint-grade birch similar to the face of the seat and tall cabinets, and painted white. For a seamless look, use wood filler to fill the seams between the 1/4-in. edge banding and the plywood on the faces of the door (W) and drawer fronts (V) before priming and painting.
To install the door (W) on the tall cabinet, drill four 1-3/8-inch x 1/2-inch deep holes with a Forstner bit for 1/2-inch overlay frameless European hinges. Drill two holes centered three inches from the top and bottom, and an equal distance (21-13/16 inches) between them for the other two. Attach the hinges square to the door (W) using pre-drilled #6 x 1/2 in. screws, and install the hinge clip to the tall cabinet side (G) so it aligns with the hinges using the same 1/2-in. screws.
To install the drawer fronts (V), click the drawer boxes into their installed slides and pre-drill four holes in the corners of the drawer box fronts (R) from inside the boxes. Then, simply mark the 1/2-inch overlay on the edge of the seat cabinet face and stick the drawer fronts (V) in place using a couple of pieces of double-sided tape. Open the drawer and screw the drawer fronts (V) and drawer box fronts (R) together with one-inch screws through the pre-drilled holes.
Note: There are many brands and styles of 1/2-inch overlay frameless euro hinges on the market, each with manufacturer instructions on hinge cup location and fastener recommendations. Follow the installation instructions for the exact hinges you choose.

Finishing touches
With everything assembled and the door (W) and drawer fronts (V) on, it’s time to do the finishing touches. Use wood filler on visible nail holes and touch up any paint or poly that needs attending to. Install door handle and drawer pull hardware. Then, the closet rod, leaving at least four inches above the top of rod to give plenty of room for the taking in and out of hangers. Place the adjustable shelf (K) on the shelf pins in the lower compartment of the tall cabinet.
If the hall tree doesn’t sit against a wall, add a stop behind the hooks (L) so they don’t rotate all the way around. Four-inch pieces of leftover 1/4-in. x 3/4-in. edgebanding will do the trick. Attach these to the back of the slats (M) behind where the bottom edge of the hooks (L) rotates when pulled down. Secure the stops with CA glue and a couple of 23-gauge pins.
And finally, to keep the hall tree from tipping over if a child were to climb on it, tie the top of the slat wall or tall cabinet into a wall stud at its final location using a metal angle bracket and the appropriate screws.

FAQ
What to store in a hall tree?
Most commonly, hall trees are used to store shoes, hats, and footwear neatly away in an entryway or mudroom. But you can also use them to store items that you often take with you when leaving the house, such as umbrellas, winter scarves and mittens, and school backpacks.
How tall should a hall tree bench be?
The height of a hall tree bench should be the same as that of a chair or bench, which typically ranges from about 17 to 20 inches.
